Kärnvedsgatan 67

Hills Villastad, MÖLNDAL

Stilren 3:a med fantastisk uteplats i soligt läge – Välkommen till Hills!

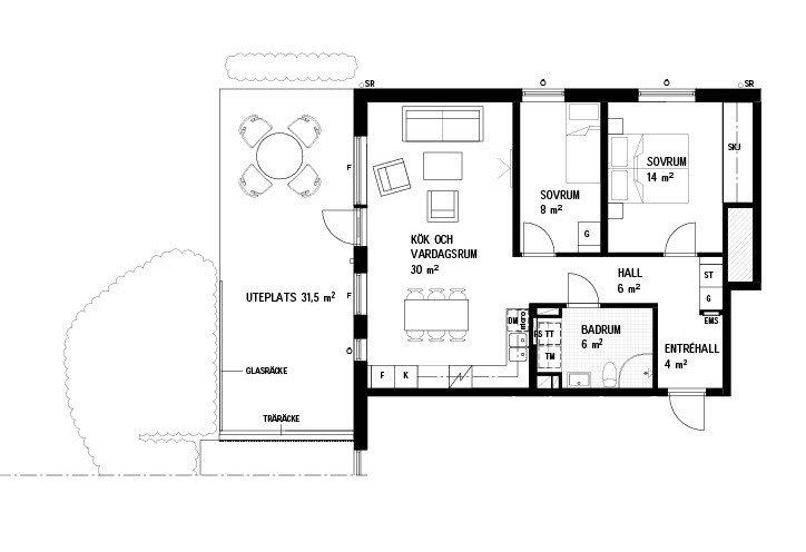
Välkommen till denna trivsamma och moderna 3:a i eftertraktade Hills – ett hem där stil, funktion och natur möts på bästa sätt. Här erbjuds en ljus och öppen planlösning som knyter samman det sociala vardagsrummet med det smakfulla köket från Marbodal. Köket bjuder på generösa arbetsytor, gott om förvaring och plats för ett större matbord intill fönstret – perfekt för både vardag och fest. Vardagsrummet är rymligt och möbleras enkelt med en soffgrupp. Härifrån kliver du rakt ut på bostadens fantastiska uteplats – en riktig oas med sol stora delar av dagen och gott om plats för både loungemöbler och grill. Det stora sovrummet har bra förvaring i skjutdörrsgarderob och det mindre rummet lämpar sig utmärkt som barnrum, gästrum eller hemmakontor. Det exklusiva badrummet är helkaklat och erbjuder en avkopplande känsla med påkostade materialval och en praktisk tvättavdelning med både tvättmaskin och torktumlare. Ett hem som erbjuder både komfort och livskvalitet – I ett naturnära och familjevänligt område bor ni med närhet till golfbana, padel, gym och restaurang på Hills Golf & Sports Club. Vackra Sandsjöbacka naturreservat med sjöar och skogspromenader finns strax intill, liksom skolor och förskolor. Här kombineras lugn villaidyll med smidiga kommunikationer – Mölndals centrum och Göteborgs city når ni på ca 15 minuter. Ett hem att trivas i, oavsett livsstil! Missa inte chansen att bli en del av Hills Villastad! Varmt välkommen att kontakta ansvarig mäklare för mer information!

Visningar

  • 20
    januari
    tisdag
    kl 17:30 - 18:00
    Klicka här för att boka

Fakta

Utgångspris
3 595 000 kr
Månadsavgift

4 913 kr/mån

Indirekt nettoskuldsättning

881 027 kr

Andel i förening

3.28371 %

Andel av årsavgift

3.24773 %

Rum

3 st

Sovrum

2 st

Boarea

71 m²

Biarea

31 m²

Våningsplan

1 / 3

Hiss

Ja

Tillträde

13/2 2026

Byggnadstyp

Flerbostadshus

Byggnadsår

2021

Reg. Fastighetsmäklare

Profil

Elton Ramani

0707-261140

elton@backmanfast.se

Månadsavgift

4 913 kr/mån

Inkl. värme och Telia Triple Play (tv, bredband och IP-telefoni) Obligatoriskt avgift om 35kr/månad för fast elkostnad.

Indirekt nettoskuldsättning

881 027 kr

Bostadsrättens indirekta nettoskuldsättning anger hur stor andel av bostadsrättsföreningens lån som indirekt belastar bostadsrätten. Det underlag som ligger till grund för beräkning av uppgiften har inhämtats från bostadsrättsföreningen, dels från årsredovisning dels från utdrag ur bostadsrättsföreningens lägenhetsregister.

Bredband

Telia Triple Play (tv, bredband och IP-telefoni).

Ventilation

FTX.

Energideklaration

Utförd

Utförd: 8/6 2021

Klass

D

Förbrukning

42 kWh/kvm per år

Drift per år

Försäkring

2 400 kr

Vatten/avlopp

3 900 kr

Elförbrukning

5 400 kr

Summa

11 700 kr

Driftkostnaden kan variera beroende på antal personer i hushållet, förbrukningsmängd samt val av tjänsteleverantör. Vi råder dig som köpare att kontrollera fakta som är av vikt för dig. Ansvarig mäklare eller Backman Fastighetsförmedling ansvarar ej för att uppgifterna är korrekta.

Närområde

Hills – Ett exklusivt bostadsområde i natursköna Mölndal Välkommen till Hills, ett av Mölndals mest eftertraktade bostadsområden! Här bor du i en harmonisk och naturnära miljö, omgiven av vackra skogar och den förstklassiga Hills Golf & Sports Club. Området erbjuder moderna och stilfulla bostäder med hög standard, generösa ljusinsläpp och genomtänkta planlösningar – perfekt för dig som söker en kombination av lyx och bekvämlighet. Hills är idealiskt för den som vill njuta av en aktiv livsstil med närhet till golfbanor, löpspår och rekreationsområden. Samtidigt har du smidig tillgång till centrala Göteborg och Mölndals stadskärna, med utmärkta kommunikationer och ett brett serviceutbud. Här får du det bästa av två världar – exklusivt boende i en lugn och grönskande omgivning, med stadens puls inom bekvämt räckhåll. Välkommen hem till Hills!

Byggnad

Typ

Flerbostadshus

Byggår

2021

Förening

Namn

Brf Hills Villastad Cederbacken.

Organisationsnr

769637-5968.

Hemsida

https://www.brfcederbacken.se/.

Tillåter delat ägande

Ja.

Om föreningen

Allmän information Bostadsrättsföreningen färdigställdes under oktober månad 2021. Allmänt om verksamheten Bostadsrättsföreningen registrerades 2019-06-12. Föreningens nuvarande ekonomiska plan registrerades 2021- 05-17 och nuvarande stadgar registrerades 2019-06-12 hos Bolagsverket. Föreningen är ett privatbostadsföretag enligt inkomstskattelagen (1999:1229) och utgör därmed en äkta bostadsrättsförening. Föreningen är momsregistrerad. Fastigheten Föreningen äger och förvaltar fastigheten nedan: Dansekullen 49-50 2020 Mölndals Kommun Föreningen har 32 bostadsrätter om totalt 2 170 kvm. Bostäderna är fördelade på två hus. Husen är belägna så att ändamålsenlig samverkan i en enda förening föreligger. Avgiftshöjningar Inga avgiftshöjningar är planerade för 2025.

Organisationsform

Bostadsrätt.

Parkering

Separata hyresavtal tecknas mellan medlemmen och Brf Cederbacken och månadshyran är bestämd till 550kr/mån för år 2025. Föreningen förfogar över 36 p-platser varav 16 har stolpe för laddning av elbil. Avgiftsbelagda gästparkeringar finns i området och delas med övriga fastigheter i GA:1.

Tv och bredband

Fastigheten har bredband (fiber) och digital-TV via Telia.

Tillåter juridisk person som köpare

Nej.

Äkta förening

Ja.

Lägenheter

32 st.

Pantsättningsavgift

588 kr.

Överlåtelseavgift

1 470 kr. Betalas av Köpare.


Karta


Planlösning


Bilder